
Neelkanth Dreamz
✔ RERABy Mangalam Builders and Promoters
Last updated: Oct 9, 2025
₹73.78 L* - ₹1.10 Cr*
1190-1780 sq.ft
Super Builtup Area
Cover Image

Ready to Move
Starts From ₹73.78 L*
Base Price
1190 - 1780 sq.ft
Super Builtup Area
728 - 1094 sq.ft
Carpet Area
867 - 1291 sq.ft
Builtup Area
Why Neelkanth Dreamz?
- Gated Community With Secure App-based Access Control
- Dedicated Parking (1 Per Unit)
- 100% Power Backup For Uninterrupted Comfort
- Apartments With North, East, And West Facings
- Premium Italian Tile Flooring
Neelkanth Dreamz Overview
Sizes
1190 - 1780 sq.ft
Project Size
Single Tower - 185 units
Launch Date
July, 2017
Base Price
₹ 6200/sq.ft
Possession Starts
Dec, 2024
Configurations
2, 3 BHK Apartments
Rera Id
UPRERAPRJ6035
More About Neelkanth Dreamz
Successfully completed our project i.e Neelkanth Dreamz
Neelkanth Dreamz is a ready to move residential development project by Mangalam Builders and Promoters located at Sector -14 Vrindavan Yojna Raebareli Road Lucknow.
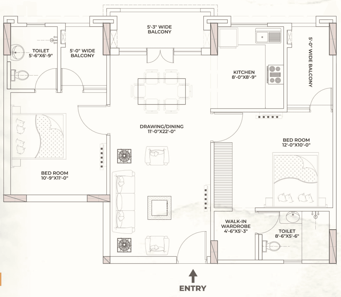
Price & Floor Plan
₹ 73.78 L*

Builtup Area
867 Sq.ft
Carpet Area
728 Sq.ft
Rera ID
UPRERAPRJ6035
Ready to Move
Photos & Videos: Tour this project virtually
Project Tour & Photos
Project Amenities
About Developer

Mangalam Builders and Promoters
"Neelkanth Dreamz, Founded 5 years ago, Mangalam Builders and Promoters has been a leader in the construction industry, known for its dedication to quality and ...
Thinking of Buying

Mangalam Builders and Promoters
Agent
+91 9511113578
For latest price & offers
Please share your contact
































